- Woonoppervlakte
- Circa 110 m²
- Inhoud
- Circa 344 m³
- Bouwjaar
- Gebouwd in 1963
- Aantal kamers
- 4 kamers (2 slaapkamers)
Een goed onderhouden hoekmaisonnette met verassend veel ruimte, gelegen op de bovenste twee verdiepingen van een kleinschalig appartementencomplex.
Het appartement is gelegen in een kindvriendelijke woonomgeving, op zeer korte afstand van het winkelcentrum Zijdelwaard en het busstation van Uithoorn. Het appartement heeft een fraai en vrij uitzicht aan zowel de voor- en achterzijde.
Bouwjaar: ca. 1963
Woonoppervlakte: 110 m²
Gebouw gebonden buitenruimte: 8 m²
Externe bergruimte: 6 m²
Inhoud: 344 m³
Indeling
Begane grond:
Afgesloten entree/hal met toegang tot het trappenhuis en de inpandige bergingen.
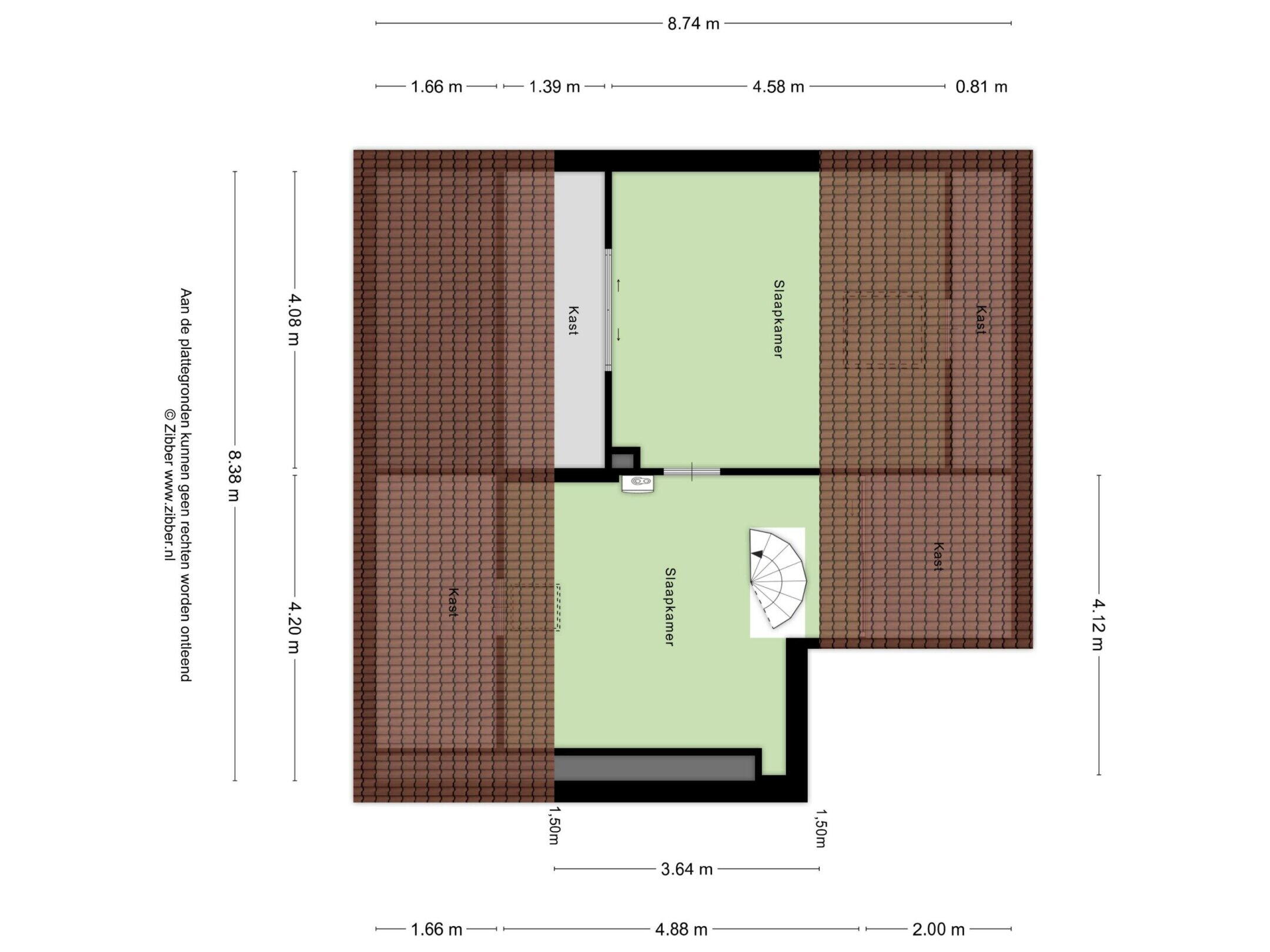
Derde verdieping/1e woonlaag;
Entree/hal met vaste trap naar 2e woonlaag, toilet met fonteintje, ruime moderne keuken met diverse inbouwapparatuur en inductiekookplaat. Vanuit de keuken heeft u toegang tot de goed onderhouden badkamer met bad, inloopdouche, dubbele wastafel en aansluiting van wasmachine/droger. Het balkon is tevens vanuit de keuken te bereiken. De lichte woonkamer met pakketvloer en open haard biedt veel ruimte en toegang tot het zonnige balkon op het zuiden. Vanuit de hal is goed bemeten slaapkamer bereikbaar.
Vierde verdieping/ 2e woonlaag;
Vanuit de hal bereikt u via een vaste trap de tweede verdieping met een zeer royale overloop voorzien van dakraam en opstelling cv-ketel. De grote slaapkamer is ook voorzien van een dakraam. Deze verdieping is enorm ruim en kan middels dakkapellen nog groter gemaakt worden en wellicht nog beter worden ingedeeld. Denk aan een extra (slaap)kamer.
Bijzonderheden:
- Zeer royale maisonnette van maar liefst 110 m²;
- Ruime berging op de begane grond;
- Twee balkons;
- Centrale en open ligging;
- De servicekosten bedragen € 125,- per maand;
- De Intergas CV-ketel is geplaatst in 2014;
- Gratis parkeren;
- Energielabel C
Bent u enthousiast gemaakt? Bel of mail ons dan laten wij u graag dit fraaie appartement zien!
Overdracht
- Vraagprijs
- € 375.000 k.k.
- Status
- Verkocht
- Aanvaarding
- In overleg
- Bijdrage VvE
- € 125 p/m
Bouw
- Object type
- Maisonnette, appartement
- Soort bouw
- Bestaande bouw
- Bouwjaar
- 1963
- Soort dak
- Zadeldak bedekt met pannen
Oppervlakte en inhoud
- Woonoppervlakte
- 110 m²
- Inhoud
- 344 m³
- Externe bergruimte
- 6 m²
- Gebouwgeb. buitenruimte
- 8 m²
Indeling
- Aantal kamers
- 4 kamers (2 slaapkamers)
- Aantal badkamers
- 1 badkamer
- Badkamervoorzieningen
- Ligbad, toilet, dubbele wastafel, inloopdouche
- Aantal woonlagen
- 2 woonlagen
- Voorzieningen
- Tv-kabel, rookkanaal, dakraam
Energie
- Energielabel
- C
- Energielabel registratie
- 10-10-2025
- Isolatie
- Dakisolatie, muurisolatie, dubbel glas
- Verwarming
- Cv-ketel
- Warm water
- Cv-ketel
- Cv ketel
- Intergas combiketel gas gestookt uit 2014 (eigendom)
Buitenruimte
- Ligging
- In woonwijk, vrij uitzicht, open ligging
- Tuin
- Geen tuin
Bergruimte
- Schuur / berging
- Box
Garage
- Soort garage
- Geen garage
Parkeergelegenheid
- Soort parkeergelegenheid
- Openbaar parkeren
VvE checklist
- Inschrijving KvK
- Ja
- Jaarlijkse vergadering
- Ja
- Periodieke bijdrage
- Ja, € 125 p/m
- Reservefonds aanwezig
- Ja
- Onderhoudsplan
- Ja
- Opstalverzekering
- Ja
Energieverbruik in Uithoorn
Energielabel deze woning
Energielabel C
Publicatie energielabel: 10-10-2025
Stroomverbruik per jaar
(Gemiddelde appartement in Uithoorn)
Gasverbruik per jaar
(Gemiddelde appartement in Uithoorn)
* Cijfers zijn afkomstig van het CBS en bedoeld als indicatie en kunnen verschillen voor deze woning
Indicatie hypotheeklasten
Eigen inleg:
Spaargeld / overwaarde
Rente:
Laagste 10-jaars rente
Laagste 10-jaars rente
2,9% - Centraal Beheer Groen L... - NHG
3,13% - Centraal Beheer Groen... - 80%
Laagste 20-jaars rente
3,29% - Centraal Beheer Groen... - NHG
3,52% - Centraal Beheer Groen... - 80%
Laagste 30-jaars rente
3,41% - Centraal Beheer Groen... - NHG
3,74% - Centraal Beheer Groen... - 80%
Hypotheek:
Bruto maandlasten: € 0 p/m
Netto maandlasten: € 0 p/m
Hoe berekenen we dit?
Het rentepercentage is gebaseerd op de laagste 10 jaars vaste rente voor één hypotheekdeel. De vermelde rente (2.9% met NHG) is gecontroleerd op 15-01-2026. Deze berekening is gebaseerd op een annuïteitenhypotheek die volledig wordt afgelost, waarbij de maandlasten gedurende de gehele looptijd gelijk blijven. De werkelijke rente en netto maandlasten kunnen variëren, afhankelijk van uw persoonlijke situatie en de hypotheekverstrekker. Raadpleeg een financieel adviseur voor een nauwkeurige berekening en advies. Aan deze berekening kunnen geen rechten worden ontleend; het dient enkel als indicatie.
Documentatie
Kadastrale kaart
Leefomgeving
WOZ waarderapport
BAG uittreksel
Brochure
Akte-van-levering-van-de-notaris
Akte-van-splitsing-en-ondersplitsing-van-de-notaris
Lijst-van-zaken
Notulen-vve-vergadering-dd-9-mrt-2025
Polis-dd-2025-08-08
Vragenlijst-deel-b
Vve-flat-1-exploitatie-2025
Vve-regelement
Plattegronden PDF
Meetrapport-a-1584210-20251011082118
Bezoek onze website
Bezichtiging
Bod uitbrengen
Waardebepaling
Zoekopdracht
Alles downloaden
Zonnegrenzen bekijken
Op de kaart
Inwoners in Uithoorn
Cijfers voor postcodegebied 1422
- Totaal aantal inwoners
- 13255 inwoners
- Mannen
- 49%
- Vrouwen
- 51%
Inwoners in Uithoorn
Cijfers voor postcodegebied 1422
- tot 15 jaar
- 17%
- 15 tot 25 jaar
- 11%
- 25 tot 35 jaar
- 24%
- 45 tot 65 jaar
- 26%
- 65 en ouder
- 21%
Huishoudens in Uithoorn
Cijfers voor postcodegebied 1422
- Eenpersoons zonder kinderen
- 35%
- Meerpersoons zonder kinderen
- 26%
- Huishoudens zonder kinderen
- 61%
Huishoudens in Uithoorn
Cijfers voor postcodegebied 1422
- Huishoudens met één kind
- 10%
- Huishoudens met meerdere kinderen
- 29%
- Huishoudens met kinderen
- 39%
Woningen in Uithoorn
Cijfers voor postcodegebied 1422
- Woningen voor 1945
- 1%
- Woningen tussen 1945 en 1965
- 19%
- Woningen tussen 1965 en 1975
- 42%
- Woningen tussen 1975 en 1985
- 11%
- Woningen tussen 1985 en 1995
- 8%
Woningen in Uithoorn
Cijfers voor postcodegebied 1422
- Woningen tussen 1995 en 2005
- 2%
- Woningen tussen 2005 en 2015
- 9%
- Woningen na 2015
- 7%
- Huurwoningen
- 40%
- Koopwoningen
- 60%
Overige in Uithoorn
Cijfers voor postcodegebied 1422
- Gemiddelde WOZ waarde
- € 296.000,-
- Personen onder de 65 met uitkering
- Niet beschikbaar
Overige in Uithoorn
Cijfers voor postcodegebied 1422
- Adressen per km²
- 1663
- Stedelijkheid (schaal 1 op 5)
- 80%
Korte feiten over Uithoorn
Uithoorn (uitspraakⓘ) is een plaats en gemeente in de Nederlandse provincie Noord-Holland. De gemeente telt 31.701 inwoners (per 1 januari 2024, bron: CBS; op 19 november 2020 werd de 30.000e inwoner geboren) en heeft een oppervlakte van 19,49 km² (waarvan 1,20 km² water). De gemeente Uithoorn maakt deel uit van de Vervoerregio Amsterdam.
Bakker Makelaardij
Indien u vragen heeft of u wilt een bezichtiging inplannen, dan kunt u gebruik maken van het formulier hiernaast. Er zal daarna op korte termijn contact met u worden opgenomen.
Bootsmanszij 2
1941 JJ, Beverwijk
0251 - 291 129 info@bakkermakelaardij.nl www.bakkermakelaardij.comContact opnemen
Bakker Makelaardij
Bakker Advies presenteert een allesomvattend dienstenpakket!
Bakker Makelaardij, samen met Bakker Hypotheken, Bakker Administratie en onze verzekeringsexperts, zijn gebundeld op één locatie. Dit stelt klanten in staat om op één locatie een volledig advies te verkrijgen over verzekeringen, investeringen, hypotheken en assistentie in de vastgoedwereld, een enorm voordeel!
Ons team bij Bakker Makelaardij, onder leiding van de erkende NVM-makelaar Willem Bakker en zijn collega Lars van Roijen, is een krachtige combinatie van vakmensen. Wat houdt dit voor u in? Het garandeert dat elk aspect met precisie wordt afgehandeld. Of het nu gaat om bemiddeling bij aankoop, verkoop, huur of verhuur, grondige taxaties of deskundig advies over de sterke en zwakke punten van een eigendom. Onze klanten blijven het middelpunt; zij bepalen de criteria en stellen de kaders.
Nieuwste reviews
-
Mascagnistraat 27
Lars handelde zeer deskundig, en hield ons goed op de hoogte wat er speelde.Ook heeft Lars een sterk biedingsstrategie, waarbij we niet al t...
-
Peter Dietz
Ik heb mijn woning verkocht via Bakker Makelaardij en ben daar zeer tevreden over. Alles wordt uit handen genomen door Wim en Lars. Ze weten...
-
Julia Metselaar
Beoordeeld met een 5